Regolare la posizione pinzatura nella Pinzatrice a sella SD-513. Ridurre il disallineamento tra le posizioni di pinzatura e la linea di piegatura.
Premere Regolazione nella schermata MACCHINA per visualizzare la schermata Menu Regolazione.
Premere in sequenza Regolazione Finisher, Regol.unità pinzatore sella e Regolazione offset punti.
Cliccare su Modo stampa.
Caricare carta A3 short edge feed o 11 17 short edge feed in qualsiasi vassoio, quindi selezionare il pulsante di quel vassoio.
Premere Avvio sul pannello di controllo.
Verrà prodotto un modello campione.
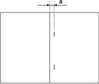
Misurare il disallineamento tra una linea di piegatura e le posizioni pinzatura.
Tolleranza: a = ± 1 mm
Premere Uscita Stampa per tornare alla schermata Regolazione offset punti.
Se occorre una regolazione, usare il tastierino del pannello a sfioramento per inserire il valore impostato.
spiegazione aggiuntivaIntervallo di regolazione: da -10 (per spostarsi verso sinistra) a +10 (per spostarsi verso destra) (1 passo = 0,1 mm)
spiegazione aggiuntivaUsare + / - per impostare il valore su positivo o negativo.
Premere Imp per modificare il valore corrente.
Ripetere i punti da 3 a 9 fino a ottenere il risultato desiderato.
Premere Riportare.
La schermata torna alla schermata Menu Regol.unità pinzatore sella.