Regolare la distanza dal bordo della carta stampata al centro dei fori nel Kit foratura PK-522 montato sul Finisher FS-532.
Oggetti di regolazione: Offset tutti i form., A3 short edge feed, A4 long edge feed, A4 short edge feed, SRA4 short edge feed, A5 long edge feed, B4 short edge feed, B5 long edge feed, 8K short edge feed, 16K long edge feed, 16K short edge feed, 8,5 14 short edge feed, 8,5 11 long edge feed, 8,5 11 short edge feed, 12 18 short edge feed, 11 17 short edge feed, 8 13 short edge feed, 5,5 8,5 long edge feed, 9 11 long edge feed, B5 short edge feed
Se si specifica un valore numerico per Offset tutti i form., è applicato a tutti i formati carta. Con un formato carta specifico selezionato, il valore impostato diventa la somma del valore inserito e del valore specificato in precedenza per Offset tutti i form.
Premere Regolazione nella schermata MACCHINA per visualizzare la schermata Menu Regolazione.
Premere in sequenza Regolazione Finisher, Reg.fin.pinz., Regol.finisher.pinz (forat.) e Reg. posiz. orizzontale (FD).
Selezionare il formato da regolare usando down o up. 
Cliccare su Modo stampa.
Caricare il formato carta selezionato al punto 3, quindi selezionare il tasto corrispondente a quel vassoio.
spiegazione aggiuntivaPer Impostazione di uscita, Bucatura è selezionato automaticamente.
Premere Avvio sul pannello di controllo.
Verrà prodotto un modello campione.
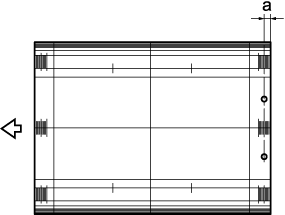
Misurare la distanza (a) dal bordo della carta stampata al centro dei fori.
spiegazione aggiuntivaIntervallo consentito: a = 12 mm ± 3 mm

Premere Uscita Stampa per tornare alla schermata Reg. posiz. orizzontale (FD).
Se occorre una regolazione, usare il tastierino del pannello a sfioramento per inserire il valore impostato.
spiegazione aggiuntivaIntervallo di regolazione: (Lontano) da -50 a +50 (Vicino) (1 passo = 0,1 mm)
spiegazione aggiuntivaPremere + / - per impostare il valore su positivo o negativo.
Premere Imp per modificare l'impostazione con i dati correnti.
Ripetere i punti da 4 a 10 fino a ottenere il risultato desiderato.
Premere Riportare.
La schermata torna alla schermata Menu regol. finisher pinzatore (perf.).