Permite preparar gráficos separados para ajustar la parte frontal y la parte posterior.
Mida los puntos de medición del gráfico de salida utilizando una regla, por ejemplo, y después introduzca el valor medido para ejecutar el ajuste.
Este ajuste resulta útil para impresión dúplex con un tipo de papel nuevo o cuando no se conoce la magnitud del error de alineación entre ambas caras después de cambiar el papel de la bandeja, porque la posición de ambas caras se puede ajustar con solo introducir los valores medidos.
Se visualiza la pantalla [Ajuste tabla/Frontal].


Se expulsa un gráfico.

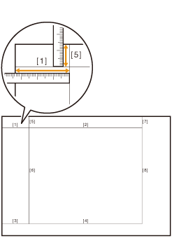
La figura muestra un ejemplo donde se miden [1] y [5].
Es posible introducir unidades de hasta 0,1 mm.

Se visualiza la pantalla [Ajuste tabla/Posterior].


Se expulsa un gráfico.
" de [1] a [4] en la parte posterior y "
" en la parte frontal del gráfico.
En la figura se muestra un ejemplo donde se mide [1]. La escala tiene una resolución de 0,5 mm.
La marca negra "
" de la figura indica la parte frontal, y la marca "
" azul, la parte posterior.
Es posible introducir unidades de hasta 0,1 mm.

En la figura del paso 10 se muestra "
" de [1] con un error de alineación respecto a la parte frontal de 2,0 mm en el lado positivo del eje X, y de 1,5 mm en el lado negativo del eje Y. En este caso, para el [1], es necesario desplazar la línea azul del parte posterior 2,0 mm en sentido negativo del eje X, y 1,5 mm en sentido positivo del eje Y. Esto se puede compensar introduciendo 20 en X y pulsando [+ / -] e introduciendo 15 en Y.