Inicio >
Ajuste > [Aj u/acabado con grap (perf)] > [Ajuste pos. horizontal(FD)]
[Ajuste pos. horizontal(FD)]
Descripción general
Permite ajustar la distancia entre el borde del papel de salida perforado y el centro de los orificios perforados, y preparar así el acabado.
Ejecute esta función cuando la posición de perforación no quede bien alineada.
Procedimiento de configuración
1
Pulse la tecla de selección del tamaño de papel que vaya a ajustar.
3
Cargue papel del tamaño seleccionado en el paso 1 en cualquier bandeja y seleccione esa bandeja de papel.
4
Pulse Iniciar en el Panel de control.
Se imprime una muestra.
5
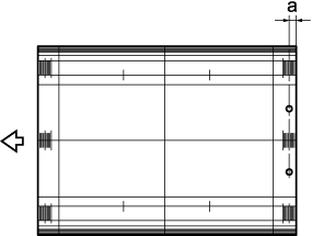
Compruebe la distancia "a" desde el borde del papel de salida hasta el centro de los orificios perforados.
6
Si se requiere algún ajuste, pulse [Salir ModoImpr] para volver a la pantalla de configuración.
7
Utilice el teclado en pantalla para introducir el valor numérico.
Utilice [+ / -] para seleccionar el signo positivo o negativo del valor numérico. Para cambiar [Datos actuales], pulse [Definir].
Posición de perforación en el borde de papel: [-] Lejos [+] Cerca
[Rango aj.:-50~+50 1paso = 0,1mm]
8
Repita los pasos 2 a 7 hasta obtener el resultado deseado.